1s1573-2 アイキャッチ

2WAY,3WAY玄関 30.00~30.99坪 4LDK アイランドキッチン シューズクローク・土間収納 テレビ裏収納 トイレ2ヶ所 パントリー ファミクロ・納戸・フリールーム ペニンシュラキッチン ランドリールーム・室内物干し 南入り玄関 回遊動線 平屋建て 横並び式キッチン 独立脱衣室 畳コーナー・和室・ヌック 西入り玄関 間取り例 L型LDK

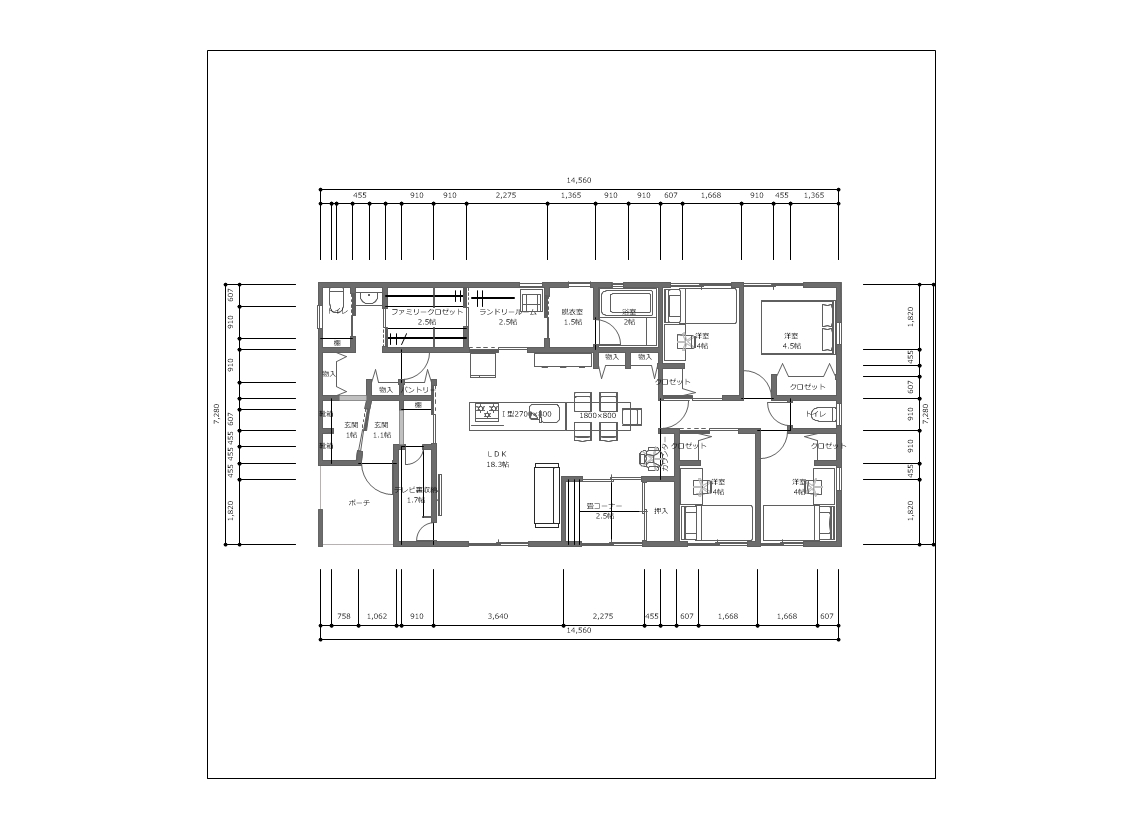
【間取り例】平屋建て 4LDK 30.54坪 (1s1573-2)

 

 設計ポイント

▶家族玄関から洗面室→ファミクロ→ランドリールーム→LDKへ続く帰宅動線

▶洗濯機置き場のあるランドリールーム

▶L型LDKの中央にあるアイランドキッチン

 

1s1573-2

クリックで拡大できます

 

■ 建築面積  105.99㎡ (32.00坪)
■ 延べ面積  101.16㎡ (30.54坪)

■ 収納率   14.83㎡ / 101.16㎡ = 14.65%

 

メモ

収納率とは、床面積に占める収納面積の比率のことです。
収納する場所や収納の効率を考慮し、自分に合った間取りを考えましょう。

 

 

 

1s1573-2 寸法線

クリックで拡大できます

 

 

 

こちらの間取り図は、参考資料として作成したものです。
建築する際には、建築基準法などの各法律、自治体の条例や指導等に基づき、建築する土地の状況や建築工法などを考慮した上で設計する必要があります。

 

 

 

-2WAY,3WAY玄関, 30.00~30.99坪, 4LDK, アイランドキッチン, シューズクローク・土間収納, テレビ裏収納, トイレ2ヶ所, パントリー, ファミクロ・納戸・フリールーム, ペニンシュラキッチン, ランドリールーム・室内物干し, 南入り玄関, 回遊動線, 平屋建て, 横並び式キッチン, 独立脱衣室, 畳コーナー・和室・ヌック, 西入り玄関, 間取り例, L型LDK