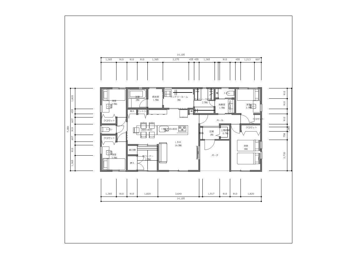
設計ポイント
▶玄関ホール・洗面室・ファミクロ・ランドリールーム・LDKを通る回遊動線
▶洗濯機置き場のあるランドリールーム
▶L型LDKの中央にあるアイランドキッチン
■ 建築面積 102.68㎡ (31.00坪)
■ 延べ面積 95.23㎡ (28.75坪)
■ 収納率 11.58㎡ / 95.23㎡ = 12.16%
メモ
収納率とは、床面積に占める収納面積の比率のことです。
収納する場所や収納の効率を考慮し、自分に合った間取りを考えましょう。
こちらの間取り図は、参考資料として作成したものです。
建築する際には、建築基準法などの各法律、自治体の条例や指導等に基づき、建築する土地の状況や建築工法などを考慮した上で設計する必要があります。

