1w1549-3 アイキャッチ

35.00~35.99坪 5LDK シューズクローク・土間収納 セミクローズキッチン トイレ2ヶ所 パントリー ファミクロ・納戸・フリールーム ペニンシュラキッチン ランドリールーム・室内物干し 北入り玄関 回遊動線 平屋建て 洗面台2ヶ所 独立脱衣室 畳コーナー・和室 西入り玄関 間取り例 L型LDK

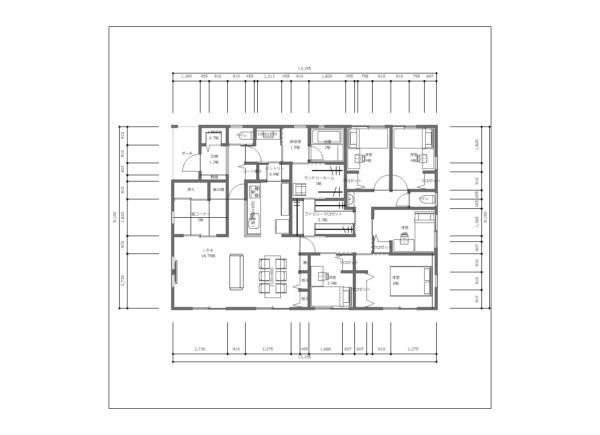
【間取り例】平屋建て 5LDK 35.125坪 (1w1549-3)

 

 設計ポイント

▶リビング隣接の畳コーナー

▶玄関ホール,洗面室,脱衣室,ランドリールーム,ファミリークロゼット,パントリー,LDKを通る回遊動線

▶四角い間取りの平屋

 

1w1549-3

クリックで拡大できます

 

■ 建築面積  120.07㎡ (36.25  坪)
■ 延べ面積  116.34㎡ (35.125坪)

■ 収納率   15.52㎡ / 116.34㎡ = 13.34%

 

メモ

収納率とは、床面積に占める収納面積の比率のことです。
収納する場所や収納の効率を考慮し、自分に合った間取りを考えましょう。

 

 

 

1w1549-3 寸法線

クリックで拡大できます

 

 

 

こちらの間取り図は、参考資料として作成したものです。
建築する際には、建築基準法などの各法律、自治体の条例や指導等に基づき、建築する土地の状況や建築工法などを考慮した上で設計する必要があります。

 

 

 

-35.00~35.99坪, 5LDK, シューズクローク・土間収納, セミクローズキッチン, トイレ2ヶ所, パントリー, ファミクロ・納戸・フリールーム, ペニンシュラキッチン, ランドリールーム・室内物干し, 北入り玄関, 回遊動線, 平屋建て, 洗面台2ヶ所, 独立脱衣室, 畳コーナー・和室, 西入り玄関, 間取り例, L型LDK